2023年07月19日
聖隷浜松病院S棟 渡り廊下完成
ー業務効率と安全性を高める動線整備
病院運営において、
「動線」は業務効率と安全性を左右します。
日常の移動負担は、
長期的に大きなロスとなります。
今回、聖隷浜松病院にて、
長年の課題であった動線が解消されました。
渡り廊下整備による改善事例をご紹介します。
渡り初め式の実施
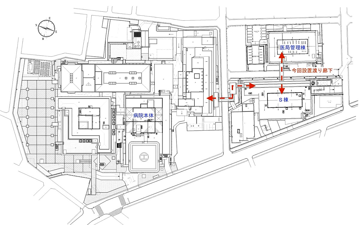
2023年7月18日、
聖隷浜松病院S棟と医局管理棟を結ぶ
道路上空渡り廊下の渡り初め式が執り行われました。
病院長、看護部長、プロジェクトリーダー医師、事務長により
テープカットが行われ、正式に供用が開始されています。


これまでの課題
医局管理棟は2016年に竣工しましたが、
病院本体とは接続されていませんでした。
そのため、約2,000人の職員が、
日々道路を横断して移動していました。
雨天時には、
約1,000本の傘を準備・回収する必要があり、
総務部門に大きな負担がかかっていました。
日常業務の中で、
見過ごされがちな非効率が蓄積していた状況です。
渡り廊下整備による改善
今回の渡り廊下整備により、
院内での移動がすべて屋内で完結するようになりました。
これにより、
移動時間の短縮と作業負担の軽減が実現しています。
天候の影響を受けない動線は、
業務の安定性にも直結します。
防災面での効果
渡り廊下は、
災害時の安全確保にも寄与します。
屋外移動が不要となることで、
患者および医療従事者の避難リスクを低減できます。
日常利用と非常時対応の両面で、
機能するインフラとなりました。
設計の視点|“見えないロス”の解消
今回の計画は、
単なる連絡通路の整備ではありません。
業務負担、時間ロス、安全性といった
数値化しにくい課題を解決する設計です。
動線を見直すことで、
施設全体のパフォーマンスは大きく向上します。
病院施設では、
動線の改善が運営効率に直結します。
小さな不便の積み重ねが、
大きなコストとなっているケースは少なくありません。
・建物間の移動に課題がある
・スタッフ動線を見直したい
・防災性を高めたい
このような課題に対して、
実運用に基づいた設計提案を行っています。
医療施設の改善・改修をご検討の際は、
ぜひ一度ご相談ください。
※新S棟の竣工写真についても、
近日中にご紹介予定です。